少量危険物庫 FPOシリーズ屋外型
FPO-1型・FPO-2型・FPO-3型
指定数量の倍数1/5倍以上1倍未満
商品説明
指定数量の倍数が1/5倍以上、1倍未満(貯蔵及び取り扱う危険物の合計)に対応。
第二石油類や、第三石油類の貯蔵が比較的多い。
1坪、2坪、3坪の3タイプがあり、それぞれ危険物を貯蔵・取り扱う際に使用する容器(4リットル缶、携行缶、一斗缶、ペール缶、灯油缶、ドラム缶、灯油タンク等)により選ばれる傾向がある。
平成26年12月「危険物貯蔵庫の床構造体の製造方法」を取得。弊社、鉄筋コンクリート製床構造の製造方法が特許を取得いたしました。火災予防条例適合タイプ。
- こだわりの設備
- 本体仕様
- 参考図面
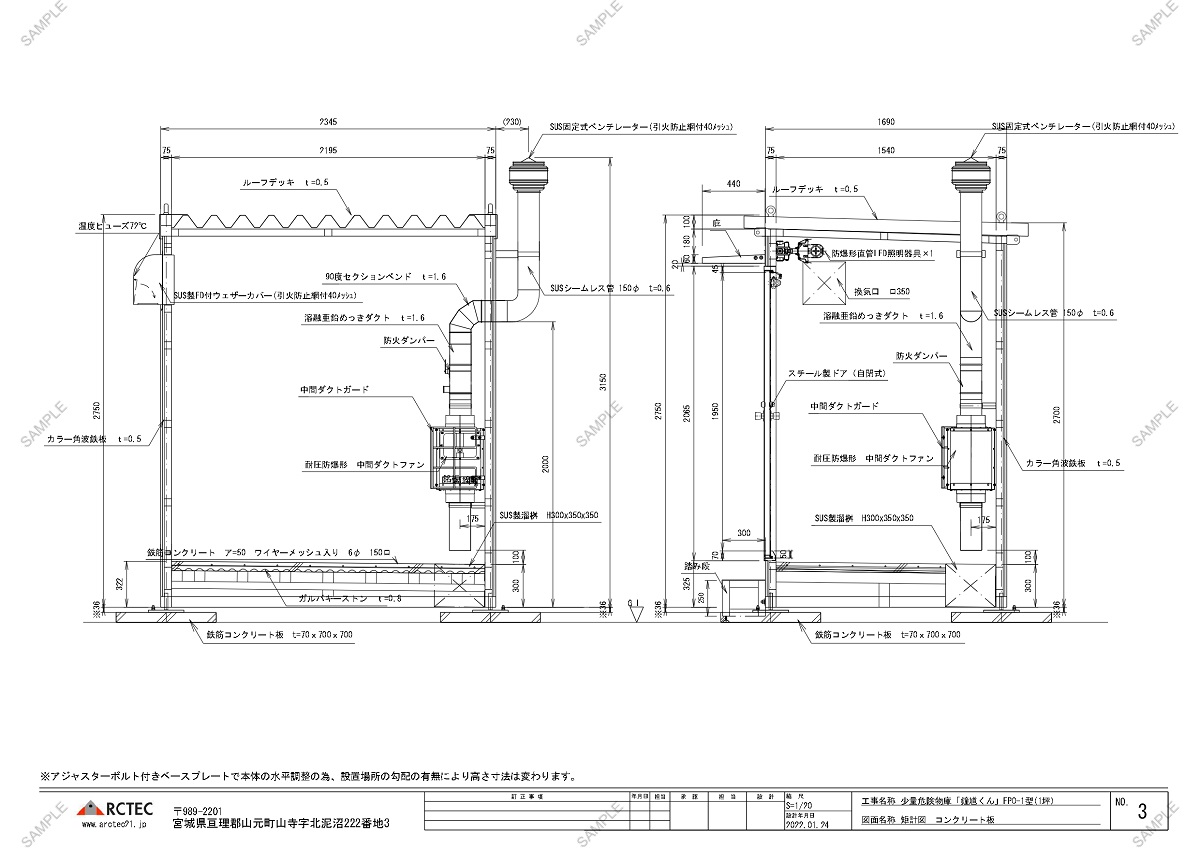
FPO-1型 - 参考図面
FPO-2型 - 参考図面
FPO-3型 - 鋼製棚
危険物庫の部位の写真を掲載しています。図面から読み取れない各種仕様をご確認ください。
鉄筋コンクリート製の床構造(特許取得済)
- 溜桝に向かって1/100の三次元的な勾配を設けることで、ピットを用いずに漏れ出た危険物を溜桝に集めます。
- 重く低い重心設計のため、強風や地震の際にも転倒しない特徴があります。
- 縞鋼板では錆びやすく、地震時に危険物容器の滑りによる二次災害を考慮した結果、鉄筋コンクリートの床の設計・開発に成功。平成26年12月26日に特許取得。

ステンレス製溜枡
(H300*350*350)
- 一般的な鋼製より腐食に強い、SUS304鋼種のオリジナル溜桝を使用しています。
- 溶剤や水分等での腐食、穴あき等を防止し、危険物の漏出を防止します。

特定防火設備の建具/防油堤機能のある沓摺
- ドアは自閉式を採用し、セミ・エアタイト仕様の為、高い気密性・水密性があり、危険物を災害等様々な要因から守ります。
- 危険物の漏洩を想定し、ドア下部にあるステンレス製の沓摺高さを50㎜程度設けることで、危険物庫外に漏出しないよう防油堤機能を持ち合わせています。

オリジナルのステンレス製庇
耐久性を意識してSUS430を採用し、仕上げに焼付塗装をしています。

ステンレス製ウェザーカバー/引火防止網付き
- 給気口の錆対策として、SUS304製のウェザーカバーに、モリブデンとニッケル含有量が多いSUS316製の引火防止網(40メッシュ)を採用しています。某原子力発電所への納品時、塩害対策としてSUS316のご要望をいただいて以来、弊社では標準仕様として採用しています。
- 72℃で作動する防火ダンパーが標準装備され、火災発生時には外部からの空気の流入を遮断します。

回転式/固定式ベンチレーター(排気側)
回転式、固定式共に40メッシュ内蔵のステンレス製ベンチレーターを採用し、雨や風が吹き込みにくい堅牢な構造となっています。

防爆形中間ダクトファン(ダクトガード付属)
- ガルバリウム綱板製で、耐候性に優れています。
- アークテックオリジナルのダクトガードを取り付けることにより、ファン筐体の破損、危険物の容器等の破損を抑止し、事故発生の防止となります。

防火ダンパー
高耐久な亜鉛メッキダンパーを採用。腐食に強く長期間安定動作可能な製品です。

防爆LED照明
明るく省電力なLED照明を標準装備しています。庫内の照度が有る為、危険物の取り出しも安心して作業可能です。

ベースプレート(250×250)
- アジャスター式のため、設置作業時に回転させてレベル調整を可能にしています。対角するプレート位置で50㎜程度の高低差まで対応可能です。
- 溶融亜鉛めっきを施し、錆の発生を抑止させ、危険物庫を足元から支えます。
- 打ち込み式アンカーはステンレス製を採用し、ジンクハット(亜鉛製の防錆カバー)が付属の為、固着や錆によるアンカーの破断を防止しています。

| タイプ | 1坪 | 2坪 | 3坪 |
|---|---|---|---|
| 規格・品番 | FPO-1型 | FPO-2型 | FPO-3型 |
| 構造 | 軽量鉄骨造(高耐食性めっき鋼材、主要部t=3.2mmZAM | ||
| 建築面積(柱芯) | 1615×2270:3.67㎡ | 1950×3060:5.97㎡ | 1950×4540:8.85㎡ |
| サイズ(外寸) | H2750×w1690×L2345 | H2750×w2025×L3135 | H2750×w2025×L4615 |
| 自重 | 1.3トン | 2.1トン | 2.7トン |
| 耐荷重 | 800kg/㎡ | ||
| 屋根 | ガルバリウム鋼鈑t=0.5 ルーフデッキH88(不燃認定NM-8697) | ||
| 外壁 | カラー角波鉄鈑t=0.5(不燃認定NM-8697) | ||
| 内壁 | 同上表し | ||
| 天井 | ガルバリウム鋼鈑ルーフデッキ表し | ||
| 床 | 鉄筋コンクリートt=50 金鏝仕上(工場打設) ガルバーキーストンt=0.8下地 ワイヤーメッシュ6φ入り 溜桝に向かって1/100勾配 |
||
| 建具 | スチール製セミエアタイトドア(ドアクローザー、シリンダー錠付、自閉式) 平成12年建設省告示第1369号に定める特定防火設備 |
||
| 電気設備 | 防爆形直管LED照明器具 スチール製スイッチボックス・スチール製ブレーカーボックス(20A漏電ブレーカー付) |
||
| 換気設備 | SUS製回転式ベンチレーター(SUS引火防止網付) | ||
| 標準基礎 | 70×700×700㎜の鉄筋コンクリート板とD24×L500の杭による基礎工事 | ||
| 消防設備 | 消火器・消火器ボックス・標識(3枚セット)取付け含む | ||
| 溜桝 | SUS製溜桝(H300×350×350) | ||
| その他の設備 | 踏み段(めっき鋼材)・庇(SUS材へ焼付塗装)・アジャスターボルト付きベースプレート(溶融亜鉛めっき) | ||
| その他の部品 | 外装材用ビスは全てSUS製、ボルト類・プレート等は全て溶融亜鉛めっき品 | ||
| オプション or 変更可能 |
SUS製固定式ベンチレーター(SUS引火防止網付) SUS製FD付きウエザーカバー(SUS引火防止網付) FD有耐圧防爆形中間ダクトファン(FULL装備) |
||
ボルトを1本も使用しない完全ボルトレス構造の鋼製棚です。
鋼製棚(段替えピッチは30mm間隔です)

地震対策(本体と鋼製棚の固定)

地震対策(床固定専用ベースを用いて、アンカーボルトにて床に固定)

地震対策(回転式の落下防止デバイザー)

























